Bautagebuch des Neubau
unseres Feuerwehrhaus
In diesem Abschnitt berichten wir regelmäßig über den Verlauf und die aktuell fortlaufenden Arbeiten am Neubau unseres Feuerwehrhauses Duhnen - Stickenbüttel. Der Bauplatz befindet sich im ehemligen Fort Thomsen an der Duhner Allee, zwischen den beiden Ortschaften.
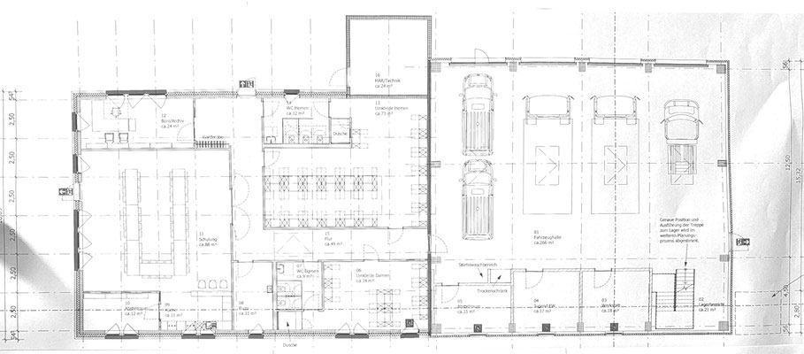
Geplant ist ein moderner Gebäudekomplex mit einem Funktionstrakt sowie einer Fahrzeughalle, die Platz für vier Einsatzfahrzeuge bietet. Die Halle entsteht in massiver Bauweise unter Verwendung von Betonfertigteilen, eine Methode, die die Bauzeit erheblich verkürzt. Für die Fassade kommen verschiedene Metallbauteile zum Einsatz, die dem Gebäude ein modernes und zugleich zweckmäßiges Erscheinungsbild verleihen.
Ein besonderer Fokus liegt auf Nachhaltigkeit. Das Flachdach wird für eine Photovoltaikanlage genutzt, die zusammen mit einer Luft-Wärmepumpe eine energieeffiziente Wärmeversorgung sicherstellt.
Das Gebäude ist auf die Bedürfnisse von 68 Feuerwehrkameradinnen und -kameraden zugeschnitten. Neben der Fahrzeughalle entstehen ein Schulungsraum, Umkleiden und sanitäre Einrichtungen.
Auch der Außenbereich wird funktional gestaltet, dort entstehen 24 Pkw-Stellplätze. Die gesamte Bauphase ist auf lediglich 91 Tage angesetzt.
Den Zuschlag für die komplette Baumaßnahme erhielt die Firma Goldbeck, eine auf diesem Gebiet sehr
erfahrene Baufirma, die das Projekt als Generalunternehmer ausführt. Mit dem neuen Gerätehaus erhält die Feuerwehr Duhnen-Stickenbüttel eine moderne, leistungsfähige Infrastruktur und ist damit
bestens für die kommenden Einsätze in den folgenden Jahren gerüstet. Für das zukünftige Gebäude am neuen Standort sind etwa 2,9 Millionen Euro eingeplant. Abschluss der gesamten Maßnahme und
Übergabe des Feuerwehrhauses soll am 18.12.25 stattfinden.

© FF-Duhnen-Stickenbüttel
14. - 16.10.25
Inzwischen ist der Aufbau der Dachkonstruktion gut vorangekommen. Im nächsten Schritt werden die Trapezbleche für den Oberbau verlegt und das Dach damit verschlossen. Danach erfolgt der Einbau
der Seitenwände.
Weiterhin wurden die Tür- und Fensterrahmen im Sozialtrakt eingesetzt und die ersten Leichtbauwände aufgestellt.
13.10.25
In dieser Woche begann der Aufbau der Fahrzeughalle. Viele Metallträger, Streben und weitere Teile wurden angeliefert und werden installiert.
09. - 10.10.25
Das Betonelemente - Domino der letzten beiden Wochen, ist ab heute abgeschlossen worden. Die letzten Fertigteile wurden angeliefert und verbaut. Sie waren noch für die Räume Werkstatt,
Jugendfeuerwehr und den Abstellraum incl. der Raumdecken. Zudem wurden die Bauteile für den künftigen Haustechnikraum aufgestellt.
Die Elemente wurden nach dem Verbau im Anschluss noch verfugt. Weiterhin wurde in der letzten Woche das Dach des Sozialtraktes mit Bitumenbahnen verschweißt, um den Bau gegen Regenwasser
abzudichten.
Insgesamt sorgt dies Verfahren der vorgefertigten Bauteile dafür, das die Prozesse der auszuführenden Arbeiten erheblich Zeit einsparen.
07.10.25
Heute kam noch einmal die Betonpumpe zum Einsatz. In der Fahrzeughalle wurde abschließend die Fundamentplatte geschüttet. Eingebracht wurde ein Spezialbeton, der mit Stahlfasern versehen ist.
Grund dafür sind die hohen Gewichte der Einsatzfahrzeuge, die hier später stehen sollen.
Weiterhin wurde die letzten Tage das Dach des Sozialtraktes mit Bitumenbahnen verschweißt, um die Dichtigkeit gegen Regenwasser und Feuchtigkeit zu garantieren.
01.10.25
In den letzten zwei Tagen ist sehr viel passiert. Inzwischen stehen die Außenwände des Sozialtraktes und die Decke wurde mit Spannbetonfertigteilen verschlossen. Heute wurde dann der Ringanker und die Fugen zwischen den Deckenteilen vergossen.
30.09.25
Weitere Betonfertigteile sorgen für ein schnelles Fortschreiten der Bauarbeiten. Neben Innenwänden wurden lange Deckenelemente verbaut, die letztendlich die Dachkonstruktion des Sozialtraktes bilden.
29.09.25
Die neue Woche beginnt und die Arbeiten laufen wie geplant weiter. Heute Früh, warteten entlang der Duhner Allee bereits mehrere Tieflader mit Betonfertigteilen. Auf der Baustelle selbst, entlud der dortige Teleskopkran diese und stellte die bereits fertigen Wände des Sozialtraktes an Ort und Stelle auf. Die Arbeiter fixierten sie dann entsprechend mit Stützen. Langsam bekommt der Bau sein Gesicht.
27.09.25
Die Vorbereitungen für Arbeiten kommende Woche sind abgeschlossen. Bislang läuft alles am Schnürchen, weiter so!
26.09.25
Heute Morgen erfolgte die Erstellung der Grundplatte des Sozialtraktes. Mehrere Mischwagen lieferten den Beton an, der anschließend über die Betonpumpe zum Baufeld gefördert wurde. In der folgenden Woche wird dann der Spezialbeton für die Fahrzeughalle verbaut.
23 - 25.09.25
Mittlerweile wurde die Fläche der Sozialräume sowie die Fahrzeughalle für den Betonverbau der Grundplatte entsprechend eingeschalt und vorbereitet. Während im Sozialtrakt Baustahlmatten verlegt
wurden, wird in der Fahrzeughalle ein anderes Verfahren angewendet. Auf Grund der hohen Belastungen durch die Fahrzeuge wird hier spezieller Stahlfaserbeton zum Einsatz kommen.
Inzwischen wurde für den künftigen Hochbau auch schon das Baugerüst aufgestellt.
17 - 19.09.25
Ein Kran hat die letzten beiden Pfeiler aufgestellt, weiterhin wurden Betonfertigteile für die untere Hallenumrandung angeliefert und verbaut.
Der Hallenbereich und der zukünftige Sozialtrakt wurden inzwischen mit Mineralgemisch aufgefüllt und verdichtet.
16.09.25
Trotz schlechten Wetters wurde heute Beton für die Streifen- fundamente des Sozialtraktes gegossen. Die Handwerker hauen einen ordentlichen Schlag ran.
08 - 12.09.25
Momentan werden die Streifenfundamente für die Sozialräume erstellt. Dafür müssen Gräben ausgehoben und Eisen geflochten werden. Vorbereitung für die kommende Woche, da kommt der Beton.
04.09.25
Heute wurde Grundsiel gelegt und die neuen Pfeiler mit Beton vergossen.
03.09.25
Ab heute
erkennt man endlich etwas. Mehrere Tieflader haben viele Betonfertigteile angeliefert. Der Kran ist da, die Handwerker sind in vollem Gange, das Wetter ist gut und der erste Hallenpfeiler stand
bereits morgens. Zum Feierabend konnte man schon mal die Dimensionen der zukünftigen Fahrzeughalle erkennen
Alles läuft bisher nach Plan, so kann es weitergehen.
28.08.25
Die ersten Mischwagen sind da und liefern Beton für die Pfeilerfundamente.
18.08.25
Die Löcher für die Fundamente der Stützpfeiler der Fahrzeughalle wurden ausgehoben.
13.08.25
Die offizielle Baugenehmigung ist heute erfolgt. Weiterhin wurden die Container der ausführenden Baufirma geliefert und aufgestellt. Büro und Sozialräume für Bauleitung und Handwerker.
10.08.25
Die gesamte ausgehobene Fläche wurde inzwischen mit einer dicken Deckschicht Mineralgemisch aufgefüllt. Die Berge mit dem überschüssigen Sand werden in Kürze abgefahren.
06.08.25
Mittlerweile wurde die Fläche ausgehoben, mit Sand aufgefüllt und verdichtet.
31.07.25
Der vor gut zwei Jahren aufgefahrene Sand wird abgetragen und das Bauloch für das Gebäudefundament ausgehoben.
30.07.25
Heute ist der Bagger "Dolly" eingetroffen. Mit ihm wird das Baufeld hergerichtet.

09.07.25
Es geht langsam los. Heute wurde das Baustellengelände zur Unfallverhütung, gegen unbefugtes Betreten abgezäunt.

27.03.25
14.06.25
Die planerischen Vorbereitungen zum Bau unseres neuen Feuerwehrhauses, gehen dem Ende entgegen. Kürzlich wurde das zukünftige Gebäude vermessen und entsprechend ausgepflockt. An Hand dieser Markierungen, lassen sich für uns jetzt schon einmal die Ausmaße der Halle erkennen. Im Gegensatz zu unseren heutigen Garagen ist es von der Größe her eine ganz andere Liga. Allem voraus gehen die Ausschreibungen wohl noch in diesem Herbst raus. Wir hoffen natürlich, dass noch in diesem Jahr der Spatenstich erfolgen kann. Dies wäre für unsere Wehr ein ausschlaggebendes Zeichen, dass es auch wirklich los geht. Wir sind jedenfalls schon mal gespannt und freuen uns.
22.11.24
Ende der Abgabefrist für die Ausschreibung zum Bau des Feuer-wehrhauses Duhnen - Stickenbüttel.
07.12.23
Der Rat der Stadt Cuxhaven beschloss am 07.12.2023 den Be-bauungsplan Nr. 222 „Fort Thomsen“ Teilbereich A und B. Alle Gremien haben diesem Projekt nach Prüfung der Unterlagen zuvor zugestimmt. Damit ist eine große Hürde genommen worden und der Weg zum Bau des neuen Feuerwehrhauses freigegeben.
15.10.23
Bereits im Frühjahr diesen Jahres wurde überschüssiger Sand vom Neubau des Feuerwehrhaus in Groden auf das Gelände aufgefahren. Dieser hat nun Zeit entsprechend abzulagern.
03.03.22
Der Verwaltungsausschuss der Stadt Cuxhaven hat in seiner Sitzung am 03.März 2022 beschlossen, den Bebauungsplan Nr. 222 „Fort Thomsen“ und die 137. Änderung des Flächennutzungsplanes der Stadt Cuxhaven für den Bereich „Fort Thomsen“ aufzustellen.
14.02.22
Abriss der alten Lagerhalle im Fort Thomsen. Das vormals als Exponatenlager des Wrackmuseums und zuletzt privat genutzte Gebäude, war im letzten Krieg als Munitionszwischenlager der dortigen MUNA gebaut worden. Nach dem Abriss sondierte der Kampfmittelräumdienst das Gelände, da es sich um eine Verdachtsfläche handelt.